3D TOUR
Ozark - House Plan

Note: Customer to select all material finishes, equipment & appliance specifications. 

PLAN NO. :

23_024

SlabCrawlspaceBasement
NoYes - Flat Rate ($400)
PDF (+$0)PDF + CAD (+$250)

$1,395.00

Modify this Home Plan:

Make minor changes to this plan for a flat $400 fee in 5 business days or Start a fully custom plan using this one as inspiration.


Questions about what kinds of modifications are feasible? Just send us an email (hello@boutiquehomeplans.com) and get a response straight from our home designer. 


Floor Plan Description:

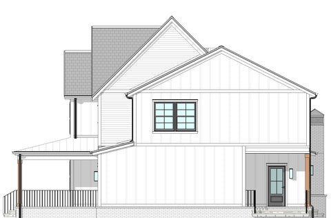
The Ozark is a traditional farmhouse with a modern layout and style. Featuring a wrap around front porch and lots of sunlight, this is a great house plan for young families. 
  • Dual studies/dens offer flexibility for home office space, nursery space or guest bedrooms. 
  • The open concept living space features two seating areas, with a TV area to the front and a fireplace to the rear.
  • The luxurious kitchen faces the living room and includes as island, side bar and walk-in pantry.
  • The dining room ties the kitchen to the rear yard with a 12ft multi-slide door. 
  • A side entry mud porch offers access into the mudroom with space for built-in cubbies, bench and drop counter next to the garage. The 2 car garage can easily be modified for side entry. 
  • Upstairs, the secondary bedrooms feature rear facing views and share a divided bathroom. 
  • The primary bed suite features a large bedroom, dual walk-in closets and a luxurious en-suite bathroom with a large shower, freestanding tub and lots of built-in cabinetry. 
  • 3D Tour:
  • Video Tour:
  • Cost to Build:

Frequently asked questions

How do the Foundation Options Work?

All of our plans come with a slab or crawlspace option. Most of our plans also come with a basement option, but that option is sometimes not available when there is no interior staircase. For basement plans, the staircase access is typically under the main stair as shown on the floorplan. The basement plan is delivered as a blank slate in the same footprint as the conditioned first floor. We can help you layout a custom basement floor plan using our flat rate customization service. 

For a slab or crawlspace foundation, the area under the main stair area is typically delivered as a closet. Feel free to contact us if you have any questions! 

Are these house plans to code & permit ready?

We design all of our plans to the 2021 International Residential Code (IRC) which is the most widely adopted code. However building code is administered at the local jurisdiction (there are estimated to be more than 20,000 jurisdictions in the US!). So there may be some subtle variations that need require edits. 

We pride ourselves on our very detailed plans, and are constantly updating our house plans to ensure that they meet even the most stringent permit requirements. Locations may require local site-specific structural engineering or a locally licensed architect to review and stamp plans. 

We always recommend hiring a structural engineer because optimizing your plan to the local site conditions can actually be a time and money saver.

Can I get a printed set of plans?

Yes, you can add any number of printed plan sets in the cart page for $40/ea shipped 3rd party. 

Alternatively, plans can be easily printed at your local large format printing store (Fedex, UPS Store, etc) for about $50-70/copy.

How are these plans guaranteed?

If the plan you purchased does not work out for any reason, we will exchange for a different plan for free. (limit one use per customer)

Because we design 100% of our house plans in-house, we are the only house plan design company that offers the benefit of a price guarantee!

Can I purchase the plans now and pay for Modifications, CAD files or Prints later?

Yes, no problem. 

You can always add any of our additional services after the fact and we will make sure it gets to you.

What is the finished area and unfinished area?

In short, the finished area is shaded blue/gray on the plans and the unfinished area is beige.

The finished area always includes all enclosed living spaces, except for bonus rooms or attics. 

The unfinished area includes, garages, porches, attics and bonus rooms. 

If selected, basement square footage is not included in the finished area.

Can I change the materials?

Yes! 

The exterior and interior materials shown are just one possible option you can choose. 

In our construction drawings, the material is always annotated 'as specified by owner' so you are not locked into a specific material or pattern. 

All materials are up to you, the owner, to pick out and specify to your contractor.  

Ready for the Perfect Fit?

Explore Custom Home Design

Stock plans are a great starting point — but your home should be designed specifically to fit your family. 

Starting at $1.50 / SF, we’ll design a plan from scratch in as little as 2-weeks, customized to your lot, lifestyle, and vision.