3D TOUR
Crystal Lake - House Plan

Note: Customer to select all material finishes, equipment & appliance specifications. 

PLAN NO. :

22_004

SlabCrawlspaceBasement
NoYes - Flat Rate ($400)
PDF (+$0)PDF + CAD (+$250)

$1,495.00

Modify this Home Plan:

Make minor changes to this plan for a flat $400 fee in 5 business days or Start a fully custom plan using this one as inspiration.


Questions about what kinds of modifications are feasible? Just send us an email (hello@boutiquehomeplans.com) and get a response straight from our home designer. 


Floor Plan Description:

This modern brick house plan is the stunning home you've always dreamed of. Tons of curb appeal, living space, three fireplaces and countless luxury features will make this feel like home the instant that you walk through the front door. 

Entering into the foyer, off the side porch, which bridges your two car garage and the main house you'll be met with tons of sunlight flanking built-in mud room cubbies. Continuing up the hall the huge, grand kitchen and dining room greats you with it's 4-5 seat island, wall cabinets and dedicated pantry space to the front of the house. 

Walking through a transomed opening, you'll step into the timber framed living room with huge floor to ceiling windows facing the front patio. Past the living room is a large media room with built-in bookcases, room for a huge TV and direct access to the adjacent fireplace lounge and study which is perfect for your home office needs. 

Accessible from both the dining room and the study is a covered rear porch with wrapped steps into your beautiful backyard. 

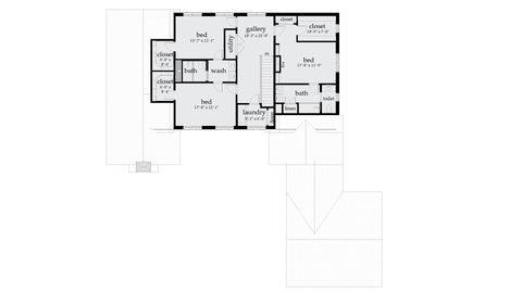
Upstairs on the left, two secondary bedrooms share a Jack & Jill bathroom which conveniently maintains privacy between the washroom and toilet room with a pocket door. Both bedrooms have large en-suite wardrobes. At the end of the hall a laundry room with integrated linen closet is conveniently located. Lastly, the primary bed suite features a huge walk-in wardrobe, a secondary reach-in wardrobe a gas fireplace insert and a large en-suite bathroom. 

  • 3D Tour:
  • Video Tour:
  • Cost to Build:

Cost to Build Estimate

Low-CostHigh-Cost
Builder-GradePremium
Estimated Cost
$—
Note: This is a rough-order estimate and does not capture all variables. Excludes land, design, permits and site conditions. Discuss formal estimates with your builder before purchasing a plan.

Frequently asked questions

How do the Foundation Options Work?

All of our plans come with a slab or crawlspace option. Most of our plans also come with a basement option, but that option is sometimes not available when there is no interior staircase. For basement plans, the staircase access is typically under the main stair as shown on the floorplan. The basement plan is delivered as a blank slate in the same footprint as the conditioned first floor. We can help you layout a custom basement floor plan using our flat rate customization service. 

For a slab or crawlspace foundation, the area under the main stair area is typically delivered as a closet. Feel free to contact us if you have any questions! 

Are these house plans to code & permit ready?

We design all of our plans to the 2021 International Residential Code (IRC) which is the most widely adopted code. However building code is administered at the local jurisdiction (there are estimated to be more than 20,000 jurisdictions in the US!). So there may be some subtle variations that need require edits. 

We pride ourselves on our very detailed plans, and are constantly updating our house plans to ensure that they meet even the most stringent permit requirements. Locations may require local site-specific structural engineering or a locally licensed architect to review and stamp plans. 

We always recommend hiring a structural engineer because optimizing your plan to the local site conditions can actually be a time and money saver.

Can I get a printed set of plans?

Yes, you can add any number of printed plan sets in the cart page for $40/ea shipped 3rd party. 

Alternatively, plans can be easily printed at your local large format printing store (Fedex, UPS Store, etc) for about $50-70/copy.

How are these plans guaranteed?

If the plan you purchased does not work out for any reason, we will exchange for a different plan for free. (limit one use per customer)

Because we design 100% of our house plans in-house, we are the only house plan design company that offers the benefit of a price guarantee!

Can I purchase the plans now and pay for Modifications, CAD files or Prints later?

Yes, no problem. 

You can always add any of our additional services after the fact and we will make sure it gets to you.

What is the finished area and unfinished area?

In short, the finished area is shaded blue/gray on the plans and the unfinished area is beige.

The finished area always includes all enclosed living spaces, except for bonus rooms or attics. 

The unfinished area includes, garages, porches, attics and bonus rooms. 

If selected, basement square footage is not included in the finished area.

Can I change the materials?

Yes! 

The exterior and interior materials shown are just one possible option you can choose. 

In our construction drawings, the material is always annotated 'as specified by owner' so you are not locked into a specific material or pattern. 

All materials are up to you, the owner, to pick out and specify to your contractor.  

Ready for the Perfect Fit?

Explore Custom Home Design

Stock plans are a great starting point — but your home should be designed specifically to fit your family. 

Starting at $1.50 / SF, we’ll design a plan from scratch in as little as 2-weeks, customized to your lot, lifestyle, and vision.